VisAgri / VisCampi

VisAgri / VisCampi

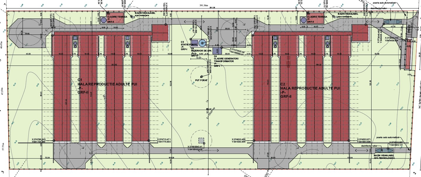
VisAgri / VisCampi developed a network of 5 poultry farms in Buzău, including adult and youth farms as well as an incubator, with a total area of 48,362 sqm.

  • VisAgri Adult Farm - 14,928 sqm
  • VisAgri Youth Farm - 7,753 sqm
  • VisCampi Adult Farm - 14,928 sqm
  • VisCampi Youth Farm - 7,753 sqm
  • Incubator - 3,000 sqm
Melsam Construction is appointed by the Client as the General Contractor.

Provided services

General Contracting

Project data

Location: Buzau
Type: Industrial
Surface: 48,362 m2
Year: 2025 - Ongoing